Lämna ändringsförslag

Västerås Norra

Trafikplats med expeditions- eller väntsalsbyggnad, kvar 2024
(Enköping)–Tillberga–(Västerås)
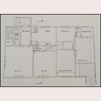
Finnslättens nya stationsbyggnad enligt ritning 1944, använd i ett SJ-ärende men upprättad av SWB (Stockholm - Westerås - Bergslagens järnvägar). Byggnaden verkar ha uppförts helt enligt ritningen och bör innehålla bl.a. väntrum och expedition samt en bostadslägenhet om två rum och kök.
Västerås Norra okänt år. Bortom stationshuset står en helhydraulisk hjulgrävare, sådana förekom knappast före 1960 och bilden är förmodligen tagen långt senare. Foto: Okänd.

Tillkom 1944 som mötesstation på den hårt belastade enkelspåriga linjen mellan Västerås (C) och Tillberga. Blev 1964 station men endast för godstrafik (mellan 1992 och 1995 förekom dock persontrafik enligt Wikipedia).

Till 1945 benämnd Finnslätten, en uppgift som inte återfinns i Järnvägsdata. Däremot används det namnet i ett ärende (Bbr 850/44) som avser "Finnslättens stationsbyggnad", "hållplatsstuga vid Finnslätten" och "stationsbyggnaden vid Finnslättens mötesplats". Begreppen är som synes inte entydiga, men namnet torde vara det som användes till att börja med.

Kilometertal

105,766

Signatur

Vån

Socken

Badelunda

Kommun

Västerås

Län

Västmanland

Ändringsförslag till objektet Västerås Norra

Namn
Objekttyp
Status
Kilometertal
Signaturer
Nummer
Socken
Kommun
Län
Byggd
Såld
Koordinater RT 90
Text
Banvakter
Meddelande /
Övriga ändringsförslag
Namn*
E-postadress*
Telefon*
Skriv följande bokstäver i omvänd ordning: WF32fV